Skip to main content
SOLD
$257,000
Date 09/29/2025

131 Brookridge Street
Lansing, KS 66043

Single Family
Residential
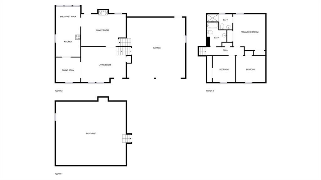
3
Beds
2
Baths
1,474
Sq. Ft.
0.29
Acre Lot
KCRAR Websites> Kansas> Lansing> 66043
100-Day Home Warranty coverage available at closing. Seller may consider buyer concessions if made in an offer. Your dream home is waiting for you! This home has Fresh Interior Paint, Partial flooring replacement in some areas. A fireplace and a soft neutral color palette create a solid blank canvas for the living area. Step into the kitchen, complete with an eye catching stylish backsplash. The primary bathroom features plenty of under sink storage waiting for your home organization needs. Take it easy in the fenced in back yard. The sitting area makes it great for BBQs! Don't wait! Make this beautiful home yours.
2551212
Residential - Single Family, Other
3
2 Full
1985
Leavenworth
0.29 Acres
Private Water
Vinyl Siding
Public Sewer
Loading...
The scores below measure the walkability of the address, access to public transit of the area and the convenience of using a bike on a scale of 1-100

Walk Score

Transit Score

Bike Score

Loading...
The information displayed on this page is confidential, proprietary, and copyrighted information of Heartland Multiple Listing Service, Inc. (Heartland MLS). Copyright 2022, Heartland Multiple Listing Service, Inc. Heartland MLS do not make any warranty or representation concerning the timeliness or accuracy of the information displayed herein. In consideration for the receipt of the information on this page, the recipient agrees to use the information solely for the private non-commercial purpose of identifying a property in which the recipient has a good faith interest in acquiring.
This content last refreshed on 3/6/2026 2:31 PM CST. Some properties which appear for sale on this web site may subsequently have sold or may no longer be available.
Information is deemed reliable but is not guaranteed.